Exklusive Eigentumswohnungen in zentraler Lage von Bad Arolsen
Erleben Sie modernes Wohnen in Bad Arolsen – barrierearme, energieeffiziente Wohnungen in einer zentralen Lage, die Ihnen Komfort, Sicherheit und Zugänglichkeit bieten. Diese exklusive Wohnanlage erfüllt höchste Ansprüche und bietet ein Zuhause, das Ihre individuellen Bedürfnisse versteht.
Bei diesem Projekt handelt es sich nicht um ein Bauträgergeschäft – die Finanzierung ist vollständig gesichert, es erfolgt keine Teilabrechnung oder Vorkasse. Der Kaufpreis wird erst nach Fertigstellung fällig.
Mehrfamilienhaus
Adresse: Hünighäuser Weg 7, 34454 Bad Arolsen
Hier finden Sie alle wichtigen Details zur Wohnanlage auf einen Blick:
| Objekttyp | Eigentumswohnungen |
| Wohnflächen | 33–103 m² |
| Preisbereich | ab 135.816,50 € bis 409.000 € |
| Zimmeranzahl | 1-4 Zimmer |
| Baujahr/Fertigstellung | Geplante Fertigstellung 2026 |
| Energieeffizienzstandard | KfW-55 |
| Ausstattung | Barrierearm, elektrische Rollläden, Tiefgarage, Aufzug, Fahrradstellplätze |
| Besonderheiten | Zentrale Lage, privater Park im Innenhof |
Diese Wohnanlage bietet Ihnen alles, was modernes und komfortables Wohnen ausmacht. Mit Wohnflächen zwischen 33 und 103 m² und einem energieeffizienten KfW-55-Standard erhalten Sie hier nicht nur ein Zuhause, sondern auch eine kluge Investition in Ihre Zukunft.
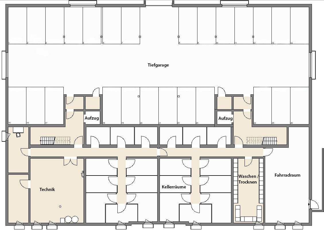
Verschaffen Sie sich einen Überblick über die Raumaufteilung und das Raumkonzept unserer Wohnungen.
Die letzten freien Wohnungen:
Sie haben noch eine Bestandsimmobilie, die zunächst veräußert werden soll?
Auch das übernehmen wir für Sie. Als Bauunternehmen mit eigener Immobilienmaklerlizenz kümmern wir uns nicht nur um Ihr neues Zuhause, sondern auch um den Verkauf Ihrer bestehenden Immobilie.
Dank unserer Doppelkompetenz können wir potenziellen Käufern auf Wunsch direkt Umbau- oder Renovierungsarbeiten anbieten – ein echter Mehrwert, da durch unseren Service bis zu ca. 25 % mehr Interessenten erreicht werden.























